7
$1,299,000 Sale
Listed 0 hours ago
13 ST DAVIDS STREET W
· 0
· 0.0
· 0
· 0 - 699
Key Facts
Key facts for 13 ST DAVIDS STREET W
Property Type
Lots/Land
Parking
Garage: No, 0 parking
MLS #
X12436040
Size
0 - 699 sqft
Basement
-
Listed on
-
Lot size
-
Tax
-
Days on Market
-
Year Built
-
Maintenance Fee
-
Description
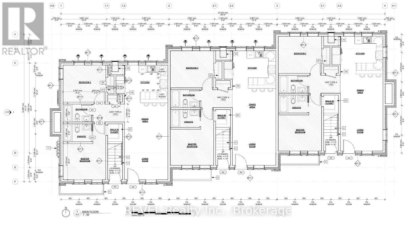
SITE APPROVED for a 9 unit building including 6 residential and 3 commercial units. This is an incredible investment opportunity located in the heart of downtown Thorold. Location is optimal as it is close to all amenities. Preliminary legwork has been done. Nothing to do but obtain a building permi...t. Buyer to do their due diligence with the City of Thorold for permitted uses. (id:10452)
Similar Properties (No results)
Listing courtesy of: REVEL Realty Inc., Brokerage
This REALTOR.ca listing content is owned and licensed by REALTOR® members of The Canadian Real Estate Association.